「象徴を空間化する」
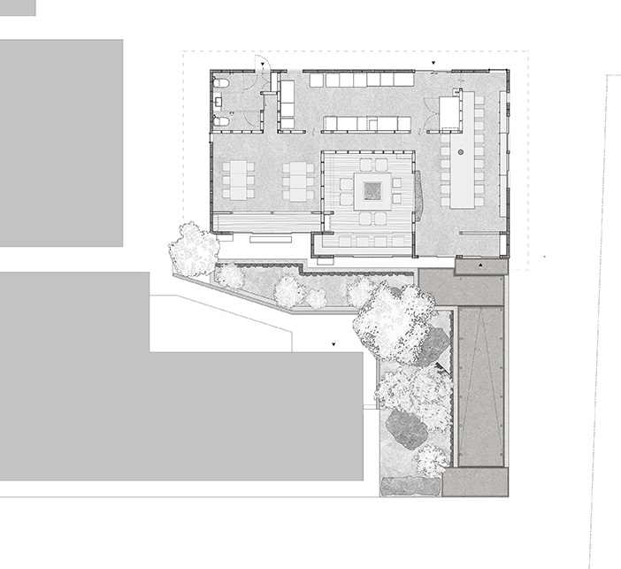
改修の対象となった建物は約150年前に建築された旧武家屋敷です。住居としての役目を終えた後は宮城県白石市の特産品である白石温麺の食事処として使用されてきました。本プロジェクトではこの旧武家屋敷の改修及び前面道路から玄関まで繋がる新ポーチの増設と前庭の計画を行いました。
新ポーチの計画にあたって、白石温麺の製造工程に見られる ” ハタ” と呼ばれる乾燥台に干される温麺の風景に着目しました。整然と並ぶ温麺のレイヤーは美しく、それは製麺文化そのものを表現していました。そしてこの風景をモチーフとすることで、この場所が培ってきた歴史や営みを空間化できるのではないかと考えました。新ポーチの両側面には3φのテンションワイヤーを合計286本を使用しました。この空間は食前の高揚感と食後の余韻を演出すると共に、飲食店の広告塔としても象徴的な意味を持ってます。
■建築概要
所在地 : 宮城県白石市
用途 : 飲食店
設計 : Shotaro Oshima Design Studio
施工 : 阿部工営社
造園 : 庭一株式会社
規模 : 地上1階
建築面積 : 136.1㎡
延床面積 : 109.1㎡
完成年月 : 2025年3月

大島頌太郎/一級建築士
■経歴
- 1990
- 東京生まれ
- 2016
- 英グラスゴー芸術大学建築学科修士課程
修了 - 2016-2020
- Jamie Fobert Architects 勤務
- 2021
- Shotaro Oshima Design Studio 設立
- 2022
- 多摩美術大学非常勤講師
Shotaro Oshima Design Studio
Mail
info@shotarooshima.com
Website
https://www.shotarooshima.com/
Instagram
https://www.instagram.com/___sods/














