本建築は南あわじ市の別荘地、『晴海ケ丘』に位置し、最終氷河期以後に現在の形になった和泉層群地の地層上の鳴門海峡に面する海を臨むことができる建物である。
敷地は約12mの高低差の傾斜でありそれと並行に、道路ラインから 15 度角度を付けて配置し、軒や壁に木をあしらったモダンな白い 4 つのボリュームが、斜面の上に張り出し浮遊感を感じさせるデザインとした。
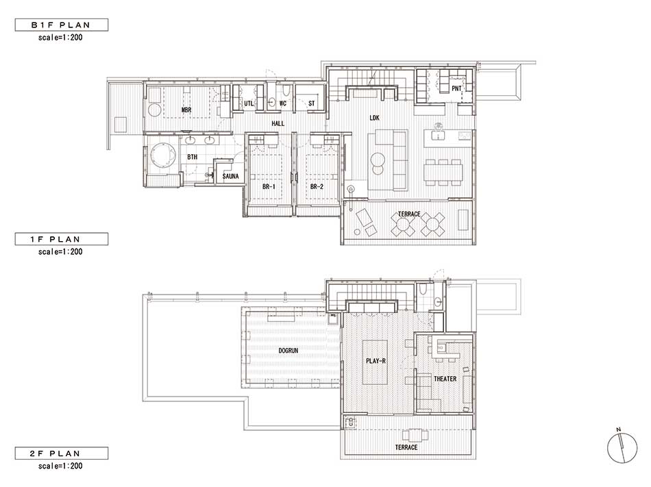
地下 1 階は玄関と収納スペースの構成であり、庵治石積の壁が来訪者を出迎える。1 階はLDK や寝室、サニタリーなどの生活エリアをまとめ、LDK と一体的なテラスでは海風を感じながらバーベキューを楽しむことができる。張出しデッキの向こうに瀬戸内海と淡路島の山並み、海の向こうには徳島の眉山が望める。2 階はプレイルームで、卓球スペースやシアタールームも配置した。水平に続く陸屋根にはドッグランを配置した。
地域の景観を取り込み地域のランドマークとなる建築をめざした。
■建築概要
構造規模:地下 1 階RC、地上 2 階木造
敷地面積:985.22 ㎡
建築面積:185.28 ㎡
延床面積:348.57 ㎡
設計期間:2023.03~2023.11
工事期間:2023.10~2024.11

大江泰輔
■経歴
- 1972
- 兵庫県生まれ
- 1995
- 大阪芸術大学 芸術学部建築学科 卒業
- 1996
- 狩野忠正建築研究所 入社
- 1997
- ミラノ工科大学 終了
- 1998
- ARCHTETTO BEPPE FACENTE 入社
- 2001
- アルファリビング 入社
- 2002
- マニエラ建築設計事務所 入社
- 2024
- マニエラ建築設計事務所 代表就任 現在に至る










