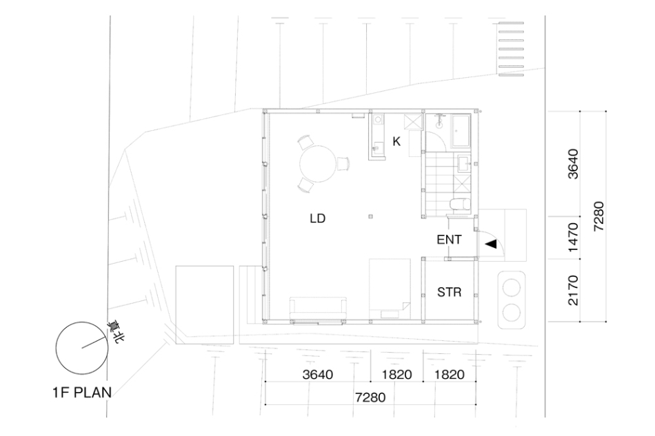
名古屋市守山区に建つ、小さな正方形平面の平屋建て住宅です。
敷地は、名古屋市内とは思えないような雑木林に面しており、(傾斜のついた)前面道路から1.2~5.4mまで下がる高低差のある傾斜地です。その高低差をどう計画するかに悩みつつ、中間あたりの少し平坦な場所に「置ける大きさ」の住宅を計画しました。
平面・断面計画は「小さな中に、大きさを包み込む」をテーマに、どうすれば小さくて大きな空間が出来るか?を課題として進めました。何回かの打合せを経て、細かく部屋を仕切る壁が少しずつ減り、全ての生活を受けとめる12坪ワンルームの計画へとかたまりました。
素材や色、形も打合せにて、手持ちの家具や照明、その他のモノ、ライフスタイル、趣味嗜好を細かくヒアリングし、できるだけそのまま住宅の意匠として取り入れる計画としています。
雑木林に面するという環境を活かすべく、木々に面さない2面は基本窓を設けず、プライバシーが確保された南側を全面開口としています。林のある面にのみ開くことで、木々を通して、天候、時間、季節の変化と対峙しつつ日々の生活をおくる、環境にも恵まれた住宅となりました。
■建築概要
敷地:愛知県名古屋市
用途:住宅
構造:木造
工事種別:新築
延べ面積:53.00㎡
設計:ジュウニミリ建築設計事務所 / 二村はじめ
施工:早川工務店 / 早川威佐夫
竣工:2025年5月
写真撮影:植村崇史写真事務所 / 植村崇史

二村はじめ(Hajime Nimura)
■経歴
- 1975
- 愛知県生まれ
- 1997
- 名城大学理工学部建築学科 卒業
店舗デザイン事務所勤務を経て - 2006
- ジュウニミリ建築設計事務所 開設
ジュウニミリ建築設計事務所
Website:https://12miri.com/
〒463-0034
愛知県名古屋市守山区四軒家1-1564
Tel:052-720-0423















