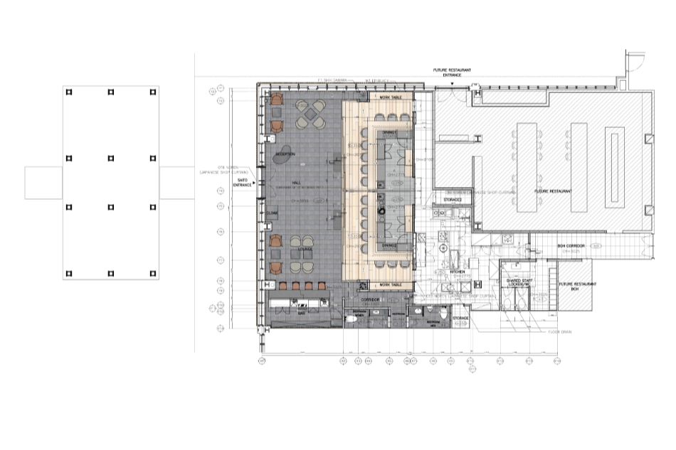
バンコクのチャオプラヤ河畔に位置し、ホテルの入居するビルの1階にある鮨屋の内装およびファサードのデザイン。
僕の好きなバンコクでのプロジェクトということで心が躍り、そこに相応しいデザインを考えたいところだったが、求められたのは日本的なデザインだった。日々京都で怪しい日本的なデザインを目にしているので、僕がバンコクらしいデザインを考えるのは危険なことは承知している。しかしバンコクに突然日本的なデザインが現れるのも唐突だ。そこで、まずファサードに木の格子を用いた。これは日本的なデザインモチーフであると同時に、バンコクの建築においてもよく見られる要素だからである。その格子を越えて内部に入ると、日本的な要素の割合を少し高めるべく、日本的なデザインモチーフを採用しつつ、艶を与えた。そして障子の奥にあるカウンター席は、ほとんど日本と感じるような空間に仕立てた。この空間で鮨を楽しみ、またバンコクへと段階的に戻っていく。
■建築概要
所在地:タイ, バンコク
内装設計:魚谷繁礼建築研究所 + 池井健建築設計事務所
設計協力:設備設計/MITR
厨房設計/マナ・インターナショナル
照明計画/What and How
企画:COUNTRY GROUP HOLDINGS, GLOBAL LINK
施工:Mutiara Company Limited
施工協力:アートワーク/Burgundy Studio
工事種別:内外装
床面積:201㎡
工期:2022年7月〜11月
撮影:池井健写真事務所

魚谷繁礼(うおやしげのり)
■経歴
- 1977
- 兵庫県出身
- 2003
- 京都大学大学院工学研究科修了
- 現在
- 魚谷繁礼建築研究所代表。京都工芸繊維大学教授。
京都を拠点に国内外で建築設計や地域計画に取り組む
■受賞
- 2023
- 「郭巨山会所」により日本建築学会賞
(作品)受賞
■主な著書
『魚谷繁礼建築集 都市の時間を重ねる』
(2024/TOTO出版)
株式会社 魚谷繁礼建築研究所
http://www.uoya.info/ao/about.html









