敷地は丘の上の閑静な住宅街にあり、2本の生活道路の角地に位置しています。約66㎡の敷地自体は平坦ですが、南斜面のため、南側に眺望や彩光などが期待できる好立地と言えます。
住まい手は3人で全員が独立した成人です。
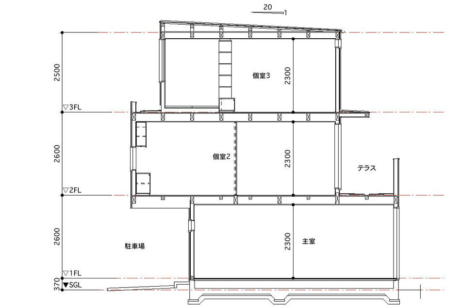
1階には、主室(居間兼食堂・台所)等と個室となる小上がりのたたみ室、2階は、浴室洗面などの共用スペースの他、寝室や居間・書斎などを備えた個室が、3階は完全に個室のみという室構成です。
各階は他の階と関連を持たず、階段のみで繋がっています。その結果、3つの層が少しずれながら重なり合った形態になっています。断面的な凹凸は、ピロティ(駐車場)となったり、屋外テラスとして利用されています。
外観は、この無関係に重ねられた3層を、抽象的な無機質な素材で包むように覆っています。
■建築概要
          所在地:神奈川県横浜市
          用途:専用住宅
          構造・規模:木造地上2階建
          敷地面積:66㎡
          建築面積:44㎡
          延床面積:106㎡
          設計・監理:杉浦事務所
          施工:一吉建設
          竣工:2019年12月

■経歴
            杉浦宏幸(すぎうらひろゆき)
- 1962
 - 静岡市生まれ
 - 1985
 - 横浜国立大学卒業
 - 1987
 - 東京工業大学大学院修了
 - 1987-1997
 - 竹中工務店
 - 1998
 - 杉浦事務所設立
 
■受賞歴















